Neubau-Bürofläche (237 qm) in Top-Lage von Korbach – Bahnhofstraße / Auf der Kampe

Adresse

Bahnhofstraße 4-6, 34497, Korbach


3.323 €

Grundmiete

5 Zimmer

Zimmer

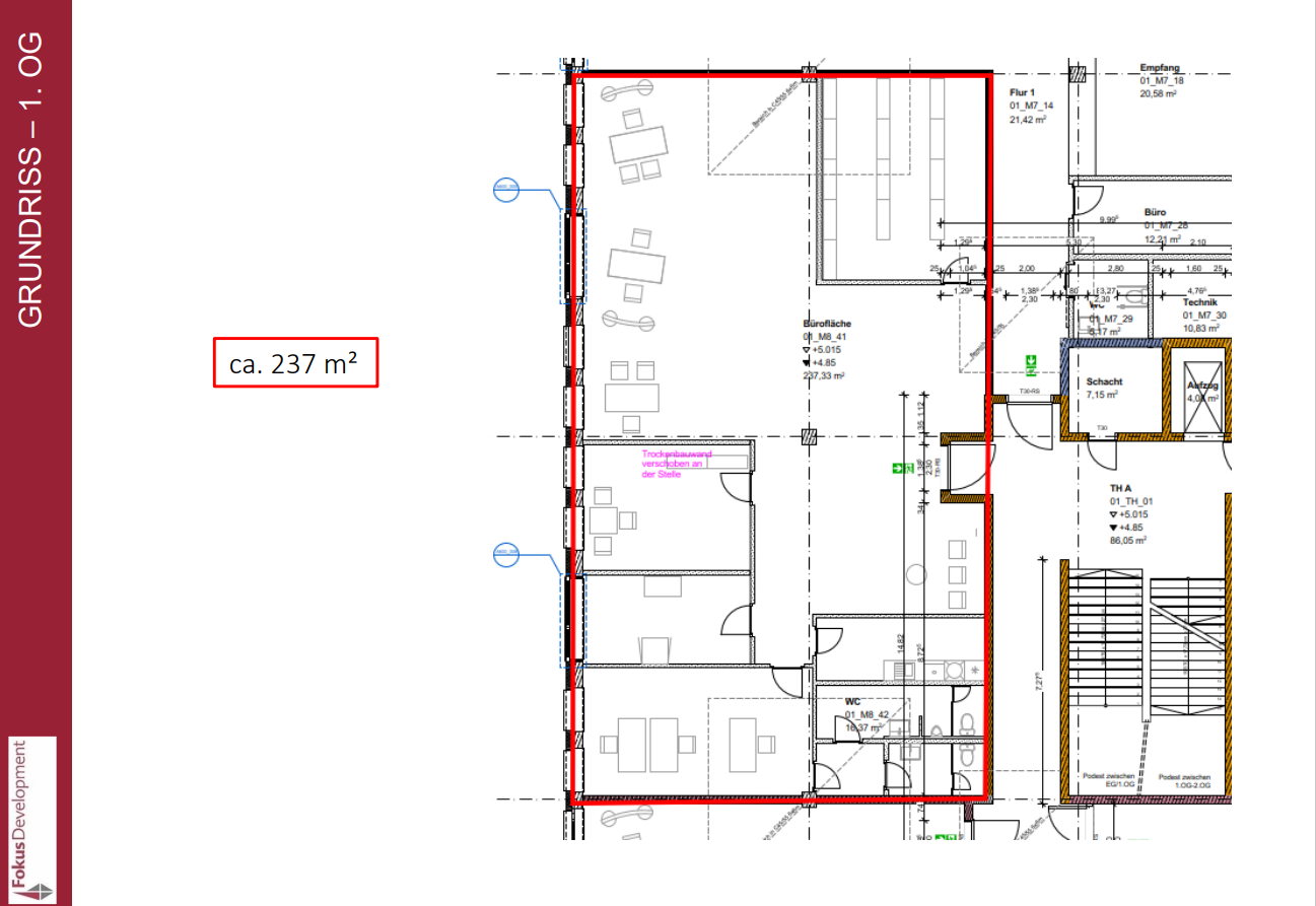
237 m²

Wohnfläche

2026-07-01

Verfügbar ab


Objektdaten

Objektart:

Bürofläche

Etage:

1

Wohnfläche ca.:

237 m²

Zimmer:

5

Schlafzimmer:

Badezimmer:

Stellplätze:


Kosten

Grundmiete:

3.323 €

Nebenkosten:

712 €

Gesamtmiete:

4.035 €

Kaution:

3 Monatsmieten


Bausubstanz & Energieausweis

Energieträger:

Baujahr Wärmeerzeuger:

2026

Energieausweis gültig bis:

31.12.2036

Energieeffizienzklasse:

Energieverbrauch:


Objektbeschreibung

In zentraler und stark frequentierter Lage von Korbach entsteht eine moderne Büro- bzw. Gewerbefläche im Neubau. Die Immobilie befindet sich im Bereich Bahnhofstraße / Auf der Kampe und bietet eine hervorragende Sichtbarkeit sowie optimale Erreichbarkeit für Kunden und Mitarbeiter.

Die Fläche eignet sich ideal für Unternehmen, Dienstleister, Kanzleien, Praxen oder andere gewerbliche Nutzungen mit Publikumsverkehr.

Objektdaten

  • Fläche: 237,33 m²
  • Fertigstellung: Q2 2026, spätestens jedoch Q3 2026
  • Mietdauer: 10 Jahre
  • Betreibungspflicht: während der üblichen Geschäftszeiten

Kostenübersicht (monatlich)

  • Kaltmiete: 3.322,62 € zzgl. Ust.
  • Nebenkosten: 593,33 € zzgl. Ust.
  • Heizkosten: 118,67 € zzgl. Ust.

Highlights

  • Neubau mit moderner Bauweise
  • Repräsentativer Standort in zentraler Innenstadtlage
  • Gute Verkehrsanbindung
  • Attraktive Sichtlage
  • Flexible Gestaltungsmöglichkeiten im Rahmen des Neubaus

Gerne stellen wir Ihnen weitere Informationen zur Ausstattung, Grundrissgestaltung oder Stellplatzsituation zur Verfügung.

Kontaktieren Sie uns für weitere Details oder zur Vereinbarung eines persönlichen Gesprächs.

Energieausweis: Ein Energieausweis liegt zur Besichtigung vor.


Lage